
长春泛娱乐俱乐部
工装 | 场所设计
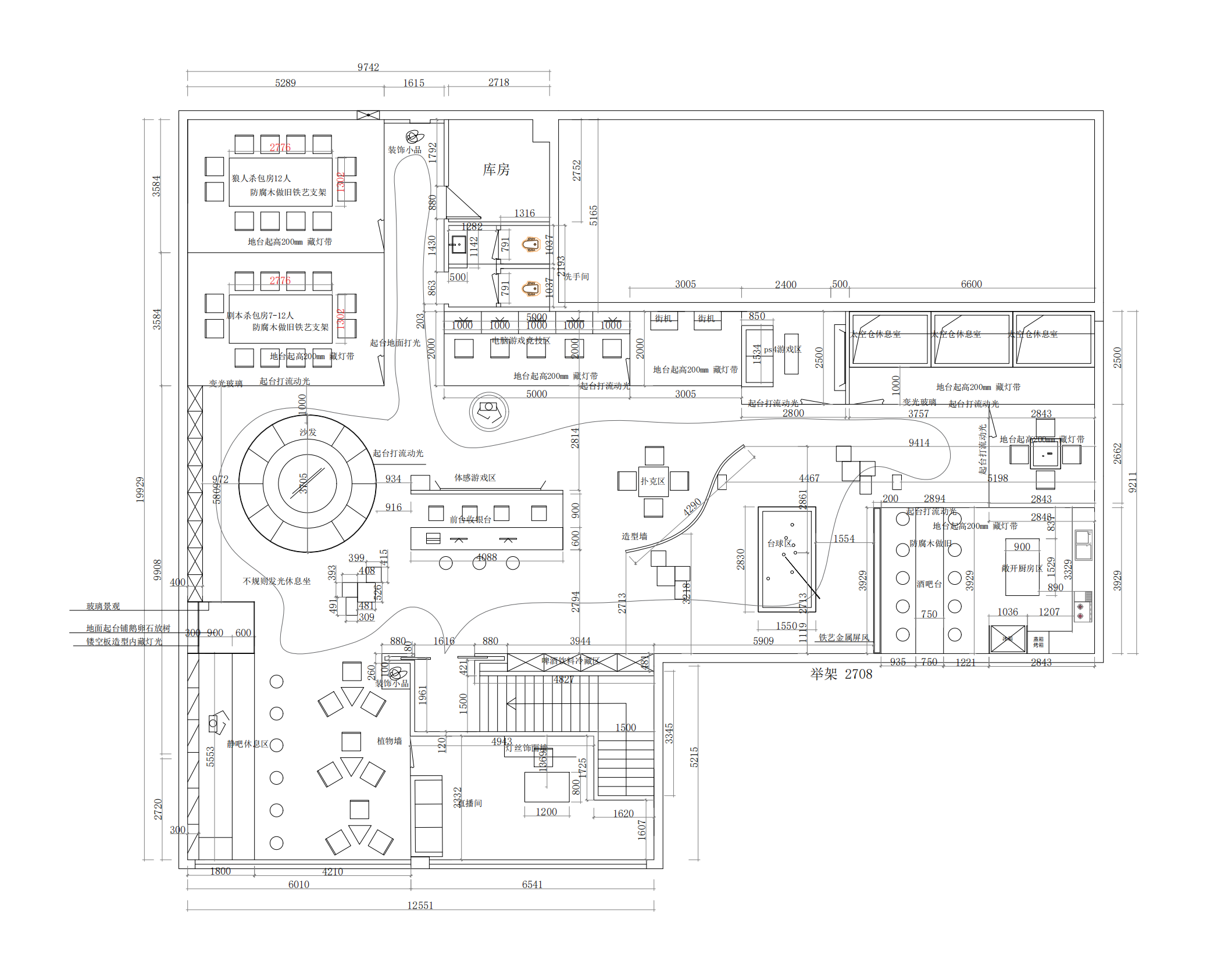
休闲娱乐场所设计
以 “光影社交,沉浸体验” 为核心,整体采用灰黑色主调,通过彩色流动灯光线条与玻璃元素营造通透又富科技感的空间。
桌游区灵活组合桌椅适配不同人数,深灰地砖配哑光黑墙面,灰色矮隔断划分区域,暖白基础灯与地面光带烘托轻松氛围。
台球区设 1 张标准球桌,深灰防滑地面搭配黑色水泥漆墙面,专业吊灯精准聚焦台面,金属框架围合区域,侧边配观赛沙发。
咖啡与休息区相连,灰调布艺沙发配胡桃木茶几,墙面嵌入暖光灯带,流动光线条沿吊顶边缘延伸,形成休闲过渡空间。
酒吧区以黑色吧台为主视觉,灰色石材台面配金属支架,背景墙藏彩色光带,灯光随节奏渐变增强氛围感。
太空舱休息室采用封闭式舱体,外覆灰色金属面板,舱门嵌冷光线条,内部智能控制保障舒适。
电竞区设专业机位,黑色电竞桌配灰色人体工学椅,顶部灯阵与设备背光联动,地面嵌蓝色光带强化科技感。
剧本杀区含两种玻璃包房:圆形包房以弧形灰框玻璃围合,内部灯光随剧情变色;长方形包房用黑色边框玻璃隔断,彩色光带沿玻璃边缘流动,兼顾私密性与观赏性。灰黑基调与动态光影交织,实现功能与美学统一。

























