
长春33号桌球俱乐部设计
休闲娱乐空间 | 台球厅设计
装修设计 台球厅
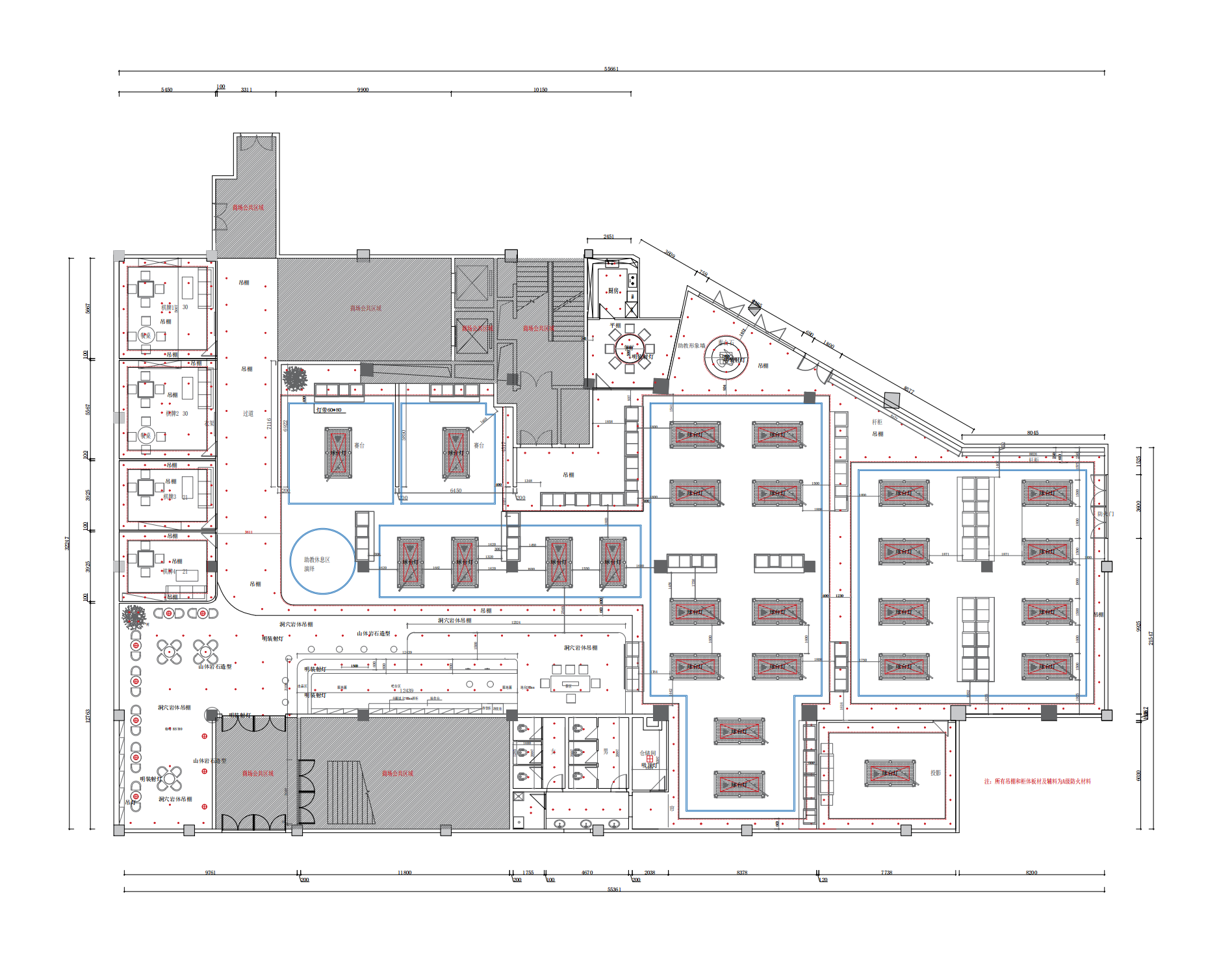
本台球厅以 “休闲社交综合体” 为定位,1200㎡空间划分四大功能区,兼顾运动、休憩与社交需求。
核心台球区采用开放式布局,选用深灰耐磨地胶搭配专业无影灯,16 张标准球桌错落排布,预留充足走位空间。墙面嵌入金属网格置物架,陈列台球文化藏品,顶面裸露管线搭配黑色金属吊灯,营造工业风运动氛围。
洞穴咖啡空间以自然肌理为亮点,弧形石材墙面模拟洞穴轮廓,原木吧台与藤编座椅呼应自然质感,暖光射灯透过绿植形成斑驳光影,打造台球运动后的松弛休憩区。
四个麻将房采用模块化隔音设计,磨砂玻璃隔断保障私密性,内饰以胡桃木家具搭配暖调软装,配备独立新风系统,满足家庭聚会与商务休闲需求。
12 米长大酒吧台为社交核心,大理石台面搭配金属支架,嵌入式酒柜与悬浮吧台灯形成视觉焦点,两侧设置高低错落的皮质卡座,衔接台球区与咖啡区,成为客流互动枢纽。整体以深灰、原木与金属为基调,动线流畅,功能分区明确,构建多元休闲社交场景。






























